With around 250 locations and 90 serve centers, we are represented in the most important economic regions of the world. The advantages are clear: short paths to our customers, fast response times and a shared language.
Pressure: p = vacuum (7 mbara) … 5 bar (73 PSI)
Temperature: t = -30 °C ... +175 °C (-22 °F … +347 °F)
Sliding velocity: vg = max. 1.0 m/s (3 ft/s)
Allowable gas consumption: 2 Nl/h
! It should be noted that the extremal values of each
operating parameter cannot be applied at the same time
because of their interaction.
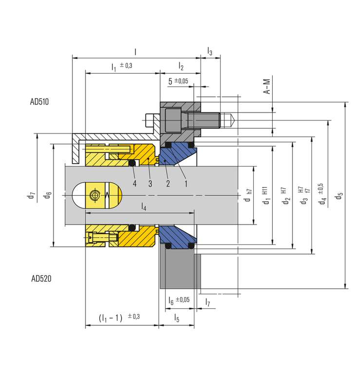
Materials
Seal face: PTFE, Carbon fiber and glass fiber reinforced
Seat: Silicon carbide (Q1), Aluminium oxide (V)
Recommended applications
Chemical industry
Pharmaceutical industry
Food and beverage industry
Reactors
Polymerization agitators
Mixers
Notes
Options:
Cooling jacket on the vessel side flange and carbon bush and
version with gas flushing line and lip seal. Please inquire.
Product variants
AD520
Similar products
SeccoLip461
For top entry drives, on request for side and bottom entry drives
For glass-lined vessels
Dry-running
Modular and flexible design
Compensation of shaft deflection by patented technology